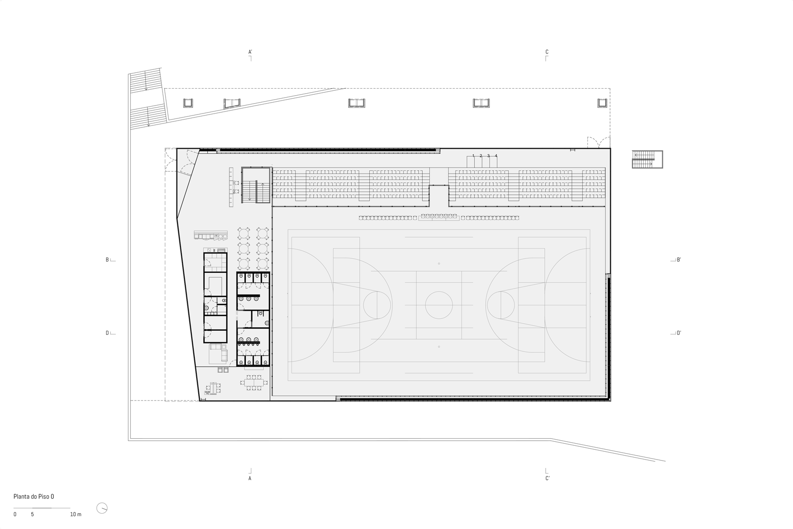
Pavilhão desportivo em Fiães
Arquitectura: André Eduardo Tavares e André Campos
Localização: Fiães, Santa Maria da Feira
Data do concurso: 2008
Projecto de Especialidades: AB Projectos, GET Lda., Engº Manuel Maçana, Engª Alexandra Barbosa
Visualização 3D: Imaginarq, Carlos Lobão
Fotografia: Arménio Teixeira (maquete)
.
